U M R / L I S A - C O R T E
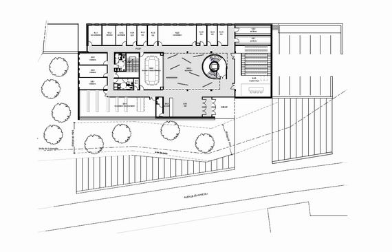
Le futur bâtiment de l’UMR LISA s’inscrit avec évidence dans les ambitions d’ aménagement urbain de la collectivité et de l’Université de Corse pour ce secteur situé au pied de la ville historique. Les objectifs environnementaux s’appuient sur la volonté de les atteindre de façon évidente et intelligente à travers les choix d’implantation, de volumétrie, d’orientation, de parti architectural .Le parti urbain est au coeur de la visibilité et de la lisibilité de l’Université dans la ville. Il s’agit ici d’un trait d’union architectural entre l’université et la Ville qui d’évidence dépasse le bâtiment lui même. Dans le paysage urbain de Corte et de la ville dominante constituée d’immeubles rigoureux rythmés simplement par la répétitivité des ouvertures verticales ainsi que par quelques balcons et corniches, la nouvelle UMR s’installe avec la même force pour prolonger l’effet extrêmement fort de l’étagement des volumes jusqu’aux hauteurs de la citadelle.
CONCOURS AOUT 2011
M.O : UNIVERSITE DE CORSE
BET : SINETIC SUDETEC R2M PETEL CAMPANA
Surf HO : 3500m2
Coût : 6 100 000 • HT









